(905) 669-4055

Block Plans

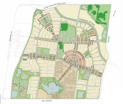
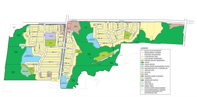
Greensborough

Greensborough

KLM Planning Partners Inc. were involved with the preparation of the Community Design Plan for the development of this community consisting of approximately 660 acres located in northern Markham, between Sixteenth Avenue, Major Mackenzie Drive, the Canadian National Railway, and Ninth Line. 

Learn More
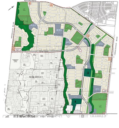
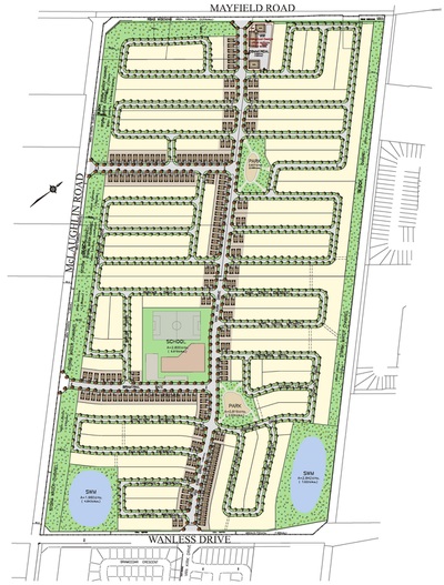
Queensville

Queensville

KLM Planning Partners led the consultant team for this mixed use development. The development consists of over 8,000 units of housing expected to eventually house around 30,000 people.

Learn More
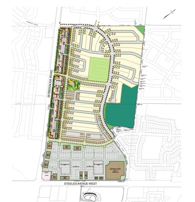
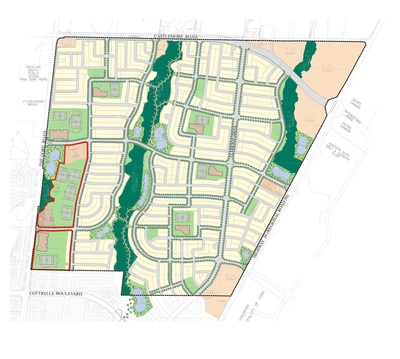
Credit Valley Block Plan

Credit Valley Block Plan

KLM Planning Partners designed this block plan and submitted several of the plans of of subdivision and Zoning By law Amendments for the developments within the block. 

Learn More
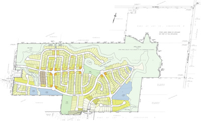
Green Lane

Green Lane

KLM Planning Partners has been retained for multiple services for the Green Lane lands in East Gwillimbury.

Learn More